NE型斗式提升機

一、型號表求方法

NE型斗式提升機的規格性能列入表10;驅動裝置型號列入表11;不同提升高度所需的驅動裝置功率列入表12。 驅動裝置有左裝和右裝兩種,可按用戶要求配置。面對提升機進料口,驅動裝置在提升機左側為左裝;在右側為右裝。
二、概述用途及特點
NE型斗式提升機為板鏈式、重力誘導卸料的提升設備。適用于垂直輸送粉狀、顆粒狀、小塊狀磨琢性或無磨琢性物料,如生料、水泥、煤、石灰石、干粘土、熟料等。
該機與其他提升機比較,其特點是:
1 采用的板鏈有較高的剪切強度、疲勞強度及耐磨性能,運轉故障率低,使用壽命長;
2 采用較低的鏈速度(o.5米/秒);
3 采用大容量的料斗和較小的斗距,驅動功率低且輸送量大。尤為適應提升破碎后的石灰石和水泥熟料(≥NE50)。
三、技術參數
型號
輸送
能力 ( 米 3 / 秒
斗速
( 米 / 秒 )
主軸
轉速
( 轉 / 分 )
物料
粒度
( 毫米 )
料 斗
運行部
件重量
( 公斤 / 米 )
容積
( 升 )
斗寬
( 毫米 )
斗距
( 毫米 )
NEl5
15
0.5
15.54
< 40
2.5
250
203
27.5
NE30
32
16.45
< 50
7.
300
305
35
NE50
60
16.45
< 50
15.7
300
305
64
NEl00
110
14.13
< 70
35
400
400
89
N6150
170
14.13
< 70
52.2
600
400
112.3
NE200
210
10.9
< 100
84.6
600
500
134
NE300
320
10.9
< 100
127.5
600
500
188
NE400
380
8.3
< 120
l 82.5
700
600
205
NE500
470
7.1
< 120
260.9
700
700
223
NE600
600
7.I
< 120
330.2
700
700
274
NE800
800
6.2
< 140
501.8
800
800
313
四、外形及安裝尺寸
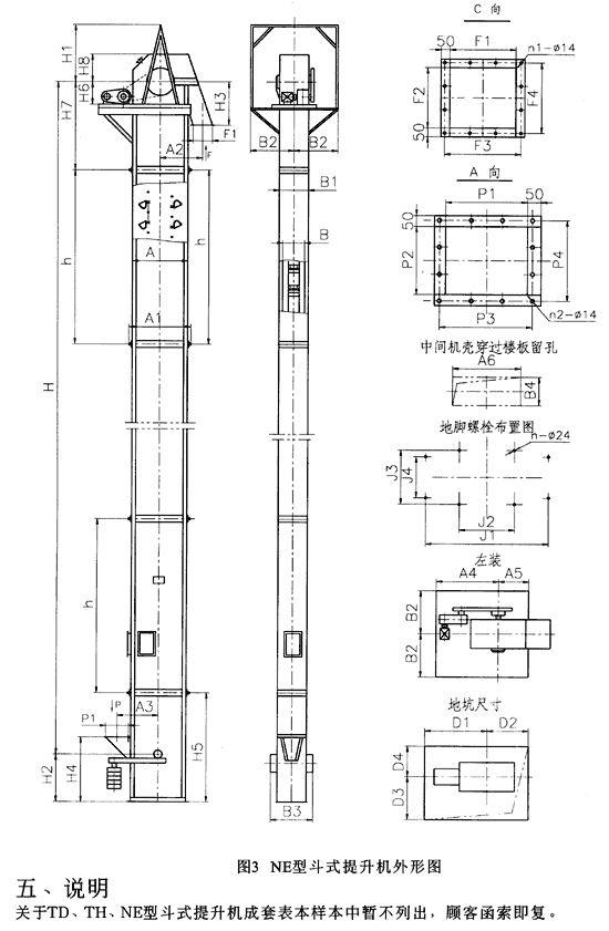
NE型提升機的外形尺寸見圖3和表13。提升機頂設有檢修用的起吊支架,若提升機設在室內,且提升機頂部設有土建吊鉤時,可在訂貸時提出取消頂部起吊支架。提升機的上機殼設有驅動裝置平臺,若現場空間不能滿足平臺要求的尺寸時,可按現場實際情況配制非標準尺寸平臺.但應在訂貨時提出。
NE型提升機的組合尺寸本樣本中暫末列出,每臺提升機一股只配套一節帶有檢視門的中間機殼。若用戶要求增加帶檢視門中間機殼數量或改變檢視門的開孔位置,應在訂貨時注明。



一、型號表求方法

NE型斗式提升機的規格性能列入表10;驅動裝置型號列入表11;不同提升高度所需的驅動裝置功率列入表12。 驅動裝置有左裝和右裝兩種,可按用戶要求配置。面對提升機進料口,驅動裝置在提升機左側為左裝;在右側為右裝。
二、概述用途及特點
NE型斗式提升機為板鏈式、重力誘導卸料的提升設備。適用于垂直輸送粉狀、顆粒狀、小塊狀磨琢性或無磨琢性物料,如生料、水泥、煤、石灰石、干粘土、熟料等。
該機與其他提升機比較,其特點是:
1 采用的板鏈有較高的剪切強度、疲勞強度及耐磨性能,運轉故障率低,使用壽命長;
2 采用較低的鏈速度(o.5米/秒);
3 采用大容量的料斗和較小的斗距,驅動功率低且輸送量大。尤為適應提升破碎后的石灰石和水泥熟料(≥NE50)。
三、技術參數
|
型號
|
輸送
能力 ( 米 3 / 秒 |
斗速
( 米 / 秒 )
|
主軸
轉速
( 轉 / 分 )
|
物料
粒度
( 毫米 )
|
料 斗
|
運行部
件重量
( 公斤 / 米 )
|
||
|
容積
( 升 ) |
斗寬
( 毫米 ) |
斗距
( 毫米 ) |
||||||
|
NEl5
|
15
|
0.5
|
15.54
|
< 40
|
2.5
|
250
|
203
|
27.5
|
|
NE30
|
32
|
16.45
|
< 50
|
7.
|
300
|
305
|
35
|
|
|
NE50
|
60
|
16.45
|
< 50
|
15.7
|
300
|
305
|
64
|
|
|
NEl00
|
110
|
14.13
|
< 70
|
35
|
400
|
400
|
89
|
|
|
N6150
|
170
|
14.13
|
< 70
|
52.2
|
600
|
400
|
112.3
|
|
|
NE200
|
210
|
10.9
|
< 100
|
84.6
|
600
|
500
|
134
|
|
|
NE300
|
320
|
10.9
|
< 100
|
127.5
|
600
|
500
|
188
|
|
|
NE400
|
380
|
8.3
|
< 120
|
l 82.5
|
700
|
600
|
205
|
|
|
NE500
|
470
|
7.1
|
< 120
|
260.9
|
700
|
700
|
223
|
|
|
NE600
|
600
|
7.I
|
< 120
|
330.2
|
700
|
700
|
274
|
|
|
NE800
|
800
|
6.2
|
< 140
|
501.8
|
800
|
800
|
313
|
|
四、外形及安裝尺寸
NE型提升機的外形尺寸見圖3和表13。提升機頂設有檢修用的起吊支架,若提升機設在室內,且提升機頂部設有土建吊鉤時,可在訂貸時提出取消頂部起吊支架。提升機的上機殼設有驅動裝置平臺,若現場空間不能滿足平臺要求的尺寸時,可按現場實際情況配制非標準尺寸平臺.但應在訂貨時提出。
NE型提升機的組合尺寸本樣本中暫末列出,每臺提升機一股只配套一節帶有檢視門的中間機殼。若用戶要求增加帶檢視門中間機殼數量或改變檢視門的開孔位置,應在訂貨時注明。




